DOCK 1
Bürogebäude in Dortmund
Geschichte des Standortes
Das Baugrundstück ist eine Teilfläche der mittelalterlichen Anlage der ca. 1290 erstmals erwähnten Hörder Burg. Der lange Zeit verrohrte und heute wieder freigelegte Hörder Bach speiste damals die Burggräfte. Ein historischer Schwarzplan zeigt den städtebaulichen Zustand um 1840, als die Vorburg noch erhalten war und die heutige „Hörder Burgstraße“ geradlinig auf das Torhaus hinführte. Seitdem ist der Verlauf der Hörder Burgstraße trotz gravierender Umbauten im Stadtraum in der Lage unverändert. Seit dem Ankauf des Burggeländes durch Dietrich Piepenstock ende des 19. Jahrhunderts wurde der Standort von der industriellen Entwicklung geprägt. Während das Hauptgebäude der Burg in seiner Grundrisskontur bis heute erhalten und erweitert wurde, ist von den umgebenden Gebäuden keines erhalten geblieben. Bis zum Bau der Verwaltungsbauten entlang der Hörder Burgstraße und des Westflügels in den Jahren 1900 / 1922 fielen das historische Torhaus und weitere Nebengebäude der Umstrukturierung zum Opfer.
Aktuelle städtebauliche Rahmenbedingungen
Die Umwandlung der ehemaligen Industriefläche in den Grünraum des Phoenixsees ist baulich weitgehend fertig gestellt. Ein Bebauungsplan ist in Aufstellung. Für das Baufeld zwischen geplantem Hafenbecken und der bestehenden Altstadt von Hörde in direkter Nachbarschaft zur Hörder Burg ist eine offene, vier- bis fünfgeschossige Bauweise vorgesehen.
Entwurfskonzept
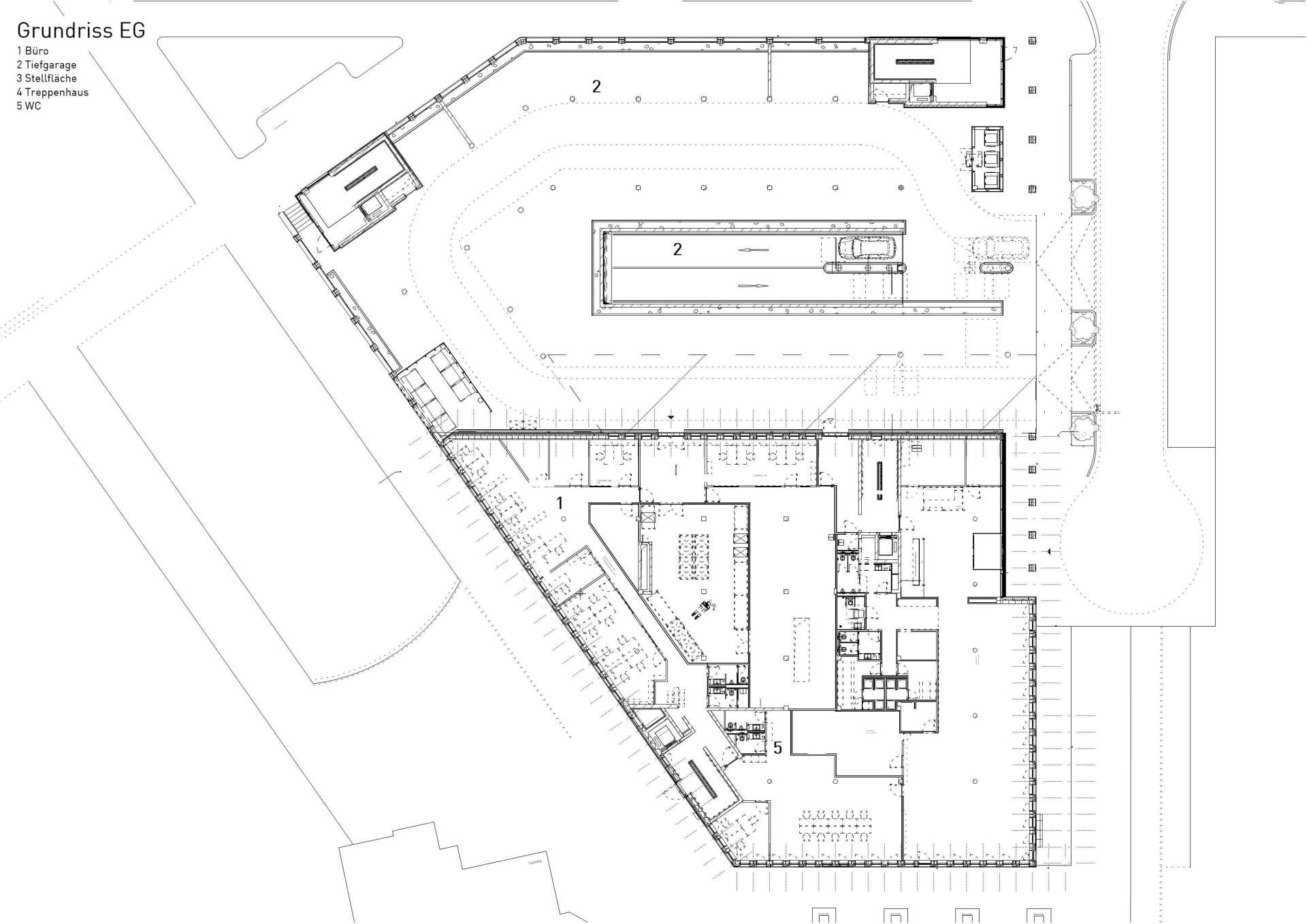
Grundgedanke des Bebauungskonzeptes ist eine Sichtbarmachung der historischen Zusammenhänge durch eine erneute städtebauliche Definition der Hörder Burgstraße, also eine Wiederherstellung der historischen Zugangssituation. Die Ziele des Bebauungsplanes wie offene Stadträume und Wegeverbindungen zum See werden umgesetzt. Das Bebauungskonzept sieht zwei Bauabschnitte vor. Der jetzt realisierte Bauabschnitt liegt im östlichen Bereich des Baufeldes zum zukünftigen See hin. Er ist in seiner trapezförmigen Grundfläche so gewählt, dass eine Überbauung des seinerzeit verrohrten Hörder Baches vermieden wurde. Durch die Lage weitgehend innerhalb der Gebäudekontur des ehemals hier vorhandenen Verwaltungsgebäudes wird der Eingriff in die Denkmalschutz-Verdachtsfläche minimiert. Das viergeschossige Gebäude nimmt die Verwaltung der über 100 Jahre in Hörde ansässigen Bauunternehmung Freundlieb mit einer Bruttogeschoßfläche von ca. 2.900qm auf. Ein zum See hin ausgerichteter aufgeständerter Baukörper bietet Raum für Konferenzen und multifunktionale Veranstaltungen. Das Foyer ist zur Hörder Burgstraße/ Faßstraße hin orientiert. Bereits im ersten Bauabschnitt wurden alle Vorkehrungen für eine spätere Anbindung einer Tiefgarage getroffen. Nach Rückbau der Kanaltrasse (Hörder Bach) kann nun der zweite Bauabschnitt realisiert werden. Im Zuge dieser Baumaßnahme kann der erste Bauabschnitt an die unterirdische Garagenanlage angebunden werden, die Zufahrt ist von der Hörder Burgstraße vorgesehen. Besucherstellplätze werden oberirdisch in das Freiraumkonzept integriert.
Energiekonzept
Das Green-Building-Planungskonzept verfolgt mit Blick in die Zukunft den Gedanken der Nachhaltigkeit. Das Büro- und Verwaltungsgebäude ist nach dem DGNB-Standard (Deutsches Gütesiegel Nachhaltiges Bauen) vorzertifiziert.
Materialkonzept
Das für den viergeschossigen Hauptbaukörper gewählte Fassadenmaterial aus hellem Naturstein orientiert sich an der gegenüberliegenden Burg und Vorburg. Trotz der gestalterischen Eigenständigkeit des Gebäudes entsteht so ein harmonisches Ensemble. Einzelne ausgestellte Fensterelemente erzeugen ein lebendiges Schatten-Wechselspiel. Der aufgeständerte Konferenzbereich ist dynamisch auf das Hafenbecken ausgerichtet.








