Herdes Gartencenter
gebäude in Dortmund
Projekt
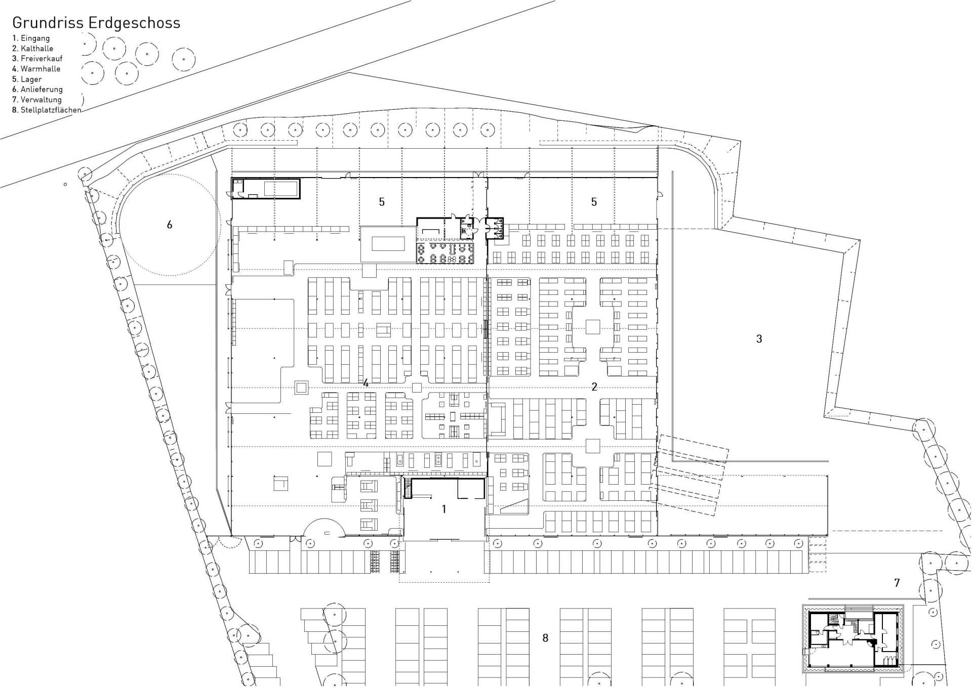
Das bestehende "Herdes Gartencenter" an der Emschertalstraße in Dortmund-Sölde wurde zur Standortsicherung abgerissen und in erweiterter Form neu errichtet. Das Planungskonzept verfolgte einen innovativen, nach ökologischen Prinzipien ausgerichteten Ansatz mit hohem gestalterischen Anspruch. Die einstige Betriebsfläche einschließlich Parkplatz und Freiflächen betrug ca. 1,6ha, nach Durchführung des Neubaus stehen nun ca. 2,6ha zur Verfügung. Der Entwurf der Planungsgruppe Drahtler GmbH sah vor, unter Einbeziehung der nördlich angrenzenden Wiese eine neue Warm- / Kalthalle mit Lager zu errichten. Südlich zur Emschertalstraße hin wurden die Parkfläche angeordnet und nach Fertigstellung des Neubaus und dem anschließenden Abbruch der Bestandsgebäude um die freiwerdende Grundfläche des ehem. Bestandes erweitert. Der Freiverkaufsbereich bleibt in seiner Lage erhalten, ein Teil des ehem. Bestandsgebäude bleibt als Sozial- und Verwaltungsbereich vorhanden.
Auf Grund der Lage im Außenbereich und in einem Abschnitt eines Regionalen Grünzuges sind besondere Untersuchungen durch Gutachter und die Aufstellung eines vorhabenbezogenen Bebauungsplanes (Ap 214) erforderlich gewesen. Das Planungskonzept wurde in zahlreichen Abstimmungsgesprächen mit Behörden, fachlich Beteiligten und den Vertretern der lokalen Politik abgestimmt und optimiert.
Erschlossen wird das Gartencenter von der Emschertalstraße durch eine Zu- fahrt für Kunden und Anlieferung etwa im Bereich der bestehenden Einfahrt. Die bestehende öffentliche Verkehrsfläche wird dafür geringfügig in ihrer Markierung verändert und zur Verkehrsleitung nach Abschluss der Neubaumaß- nahmen mit einer Lichtzeichenanlage versehen.
Dem Verkaufsgebäude ist eine Park-Landschaft vorgelagert, die durch Pflanzungen von großkronigen Bäumen zoniert wird. Pkw-Stellplätze werden auf einem offeneren Vorplatzbereich in Eingangsnähe und einer von einem dichten Laubdach geschützten Fläche angeboten. Hier sollen (wegen der größeren Entfernung zum Eingang) mit Rücksicht auf die Nachbarbebauung nur in Hauptzeiten Fahrzeuge geparkt werden. Landschaftselemente wie Hecken und "Landschaftsschaufenster" lockern diesen Bereich weiter auf. Landschaftsschaufenster sind Themen- und Mustergärten, die u.a. auch Produkte des Gartencenter Herde präsentieren können. Das ökologische Gesamtkonzept sieht u.a. eine allseitige Eingrünung, teilweise Fassadenbegrünung und Einsenkung des Gebäudes in den Hang vor, um die Einbindung in die Landschaft zu gewährleisten.
Der Gartencenter-Neubau gliedert sich in vier Nutzungsbereiche. Der Eingang öffnet sich mit einladender Geste durch ein flach geneigtes Dach mit großem Überstand zum Kundenparkplatz hin. Der eintretende Kunde orientiert sich hier im Foyer, Sonderverkaufsflächen bieten unterschiedliche Angebote wie z.B. Frischblumen, Einkaufswagen stehen zur Mitnahme bereit.
Vom Foyer aus betritt der Kunde zunächst die temperierte Kalthalle und wird über einen Promenadenweg an den unterschiedlichen, in Themenschwerpunkten organisierten Angeboten vorbeigeführt. Die Dachfläche ist mit Schrägverglasungen versehen, eine großflächige Glasfassade öffnet sich für den Blick nach Osten zum Freiverkaufsbereich hin. Lüftungsklappen im Firstbereich können je nach Witterungsbedingungen nach Norden und / oder Süden geöffnet werden. Über den Freiverkaufsbereich und die Kalthalle wird der Kunde in die Warmhalle gelenkt. Neben dem Produktangebot findet sich hier ein Bistro mit Nebenräumen und Kundentoiletten. Schließlich führt der Kundenweg zur Kassenzone und von dort zurück in das Foyer.
Über die gesamte Breite des Gebäudes erstrecken sich entlang der Nordfassade (abgewendet vom Kundenbereich) die Lagerflächen, sodass alle Verkaufsbereiche mit direktem Zugang versorgt werden können, ohne die Verkaufsabläufe zu beeinträchtigen. Die Anlieferung erfolgt über eine gesonderte Zufahrt im westlichen und nördlichen Grundstücksbereich.
Der hohe Bedarf an Wasser für die Pflege der Pflanzen und die eingeschränkten Möglichkeiten der Versickerung von Regenwasser bzw. Einleitung in die Kanalisation bestimmten das Konzept der umfangreichen Brauchwassernutzung. Zusätzlich zu einer Zisternenanlage wurden hier umfangreiche Retentionsvolumina geplant.
Eine aktive Solarenergienutzung z.B. durch Photovoltaik oder Kollektoren zur Wärmegewinnung werden weiter gepüft.
Durch die Grundkonzeption der Gesamtanlage und einzelne Maßnahmen wie Bepflanzungen werden die Interessen der Nachbarn und das Landschaftsbild gewahrt.




