NanoEnergieTechnikZentrum (NETZ)
Bildungsgebäude in Duisburg
Projekt
Am Standort Campus Duisburg der Universität Duisburg-Essen ist ein Laborgebäude, das NanoEnergieTechnikZentrum NETZ zu errichten.
Mit der Schaffung von rd. 4.400 m3 NF sollen die räumlichen Voraussetzungen für die Forschung an Nanopartikeln durch das CeNIDE Center for Nanointegration Duisburg-Essen geschaffen werden.
Das Grundstück, Fläche ca. 3700 m3, liegt am östlichen Rand des Campus Duisburg der Universität Duisburg-Essen parallel zur öffentlichen Verkehrsfläche, von der es durch einen Streifen öffentlichen, waldartigen Grüns getrennt ist.
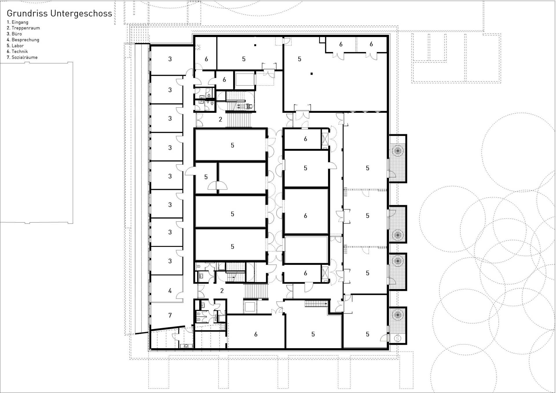
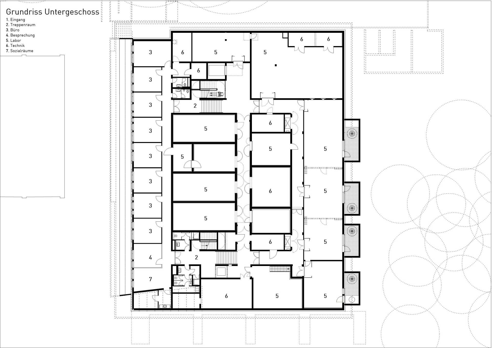
Das Gebäudevolumen, ca. 38.000 m3, des sich in Nord-Süd-Richtung über ca. 48,00 m und in Ost-West-Richtung über 36,50 m erstreckenden Baukörpers stellt sich aufgrund seiner mittleren Höhe über Gelände von ca.17,00 m als liegender Quader dar. Dieses Volumen wird aus vier Büro- und drei Laborgeschossen mit etwa 4.400 m3 Nutzfläche, die z.T. halbgeschossig gegeneinander versetzt sind, gebildet.
Der Laborteil wird von einem zusätzlichen Geschoss als Technikfläche ca. 4,00m überragt. Beide Gebäudeteile sind durch ein Untergeschoss unterbaut, welches auf der Büroseite über einen Lichtgraben belichtet wird. Auf der Laborseite beherbergt das Untergeschoss den besonders sensiblen Bereich für die Elektronen- mikroskopie, welcher mit besonderen baukonstruktiven Maßnahmen vor unzulässigen Einwirkungen zu schützen ist.
Ein Innenhof, der ab dem Erdgeschoss den Baukörper durchdringt, erlaubt die zweiseitige Belichtung der daran angrenzenden Büro- und Laborbereiche, in denen bis zu 130 Personen tätig sein werden.
Die als ringförmige Zweibundanlage konzipierte Grundrissstruktur wird aus einem weitgehend unterzuglosen System von Stützen und Wandscheiben und einer tragenden Fassade aus Stahlbeton gebildet.
Die Fassadenbekleidung ist in horizontal drei unterschiedlich strukturierten Bereichen generell als hinterlüftete Vorhangfassade ausgebildet.
Sie weist im Unter- und Erdgeschoss überwiegend eine Außenhaut mit signifikant streifenartiger Betonoberfläche, in den Regelgeschossen eine Fassade mit einer Außenhaut aus Aluminiumverbundplatten mit Farbbeschichtung auf. Diese ist strichcodeartig, vertikal mit einer hell-dunkel-Matrix strukturiert. Eine Textilbespannung aus Einzelrahmen vor dem Technikgeschoss umschließt das höchste, dem Waldstreifen zugewandte Bauteil. Die Textilflächen sind z.T. bedruckt.








