Wohnen am Phoenixsee
Wohngebäude in Dortmund
Das Haus für den Standort - Ausrichtung, Zonierung
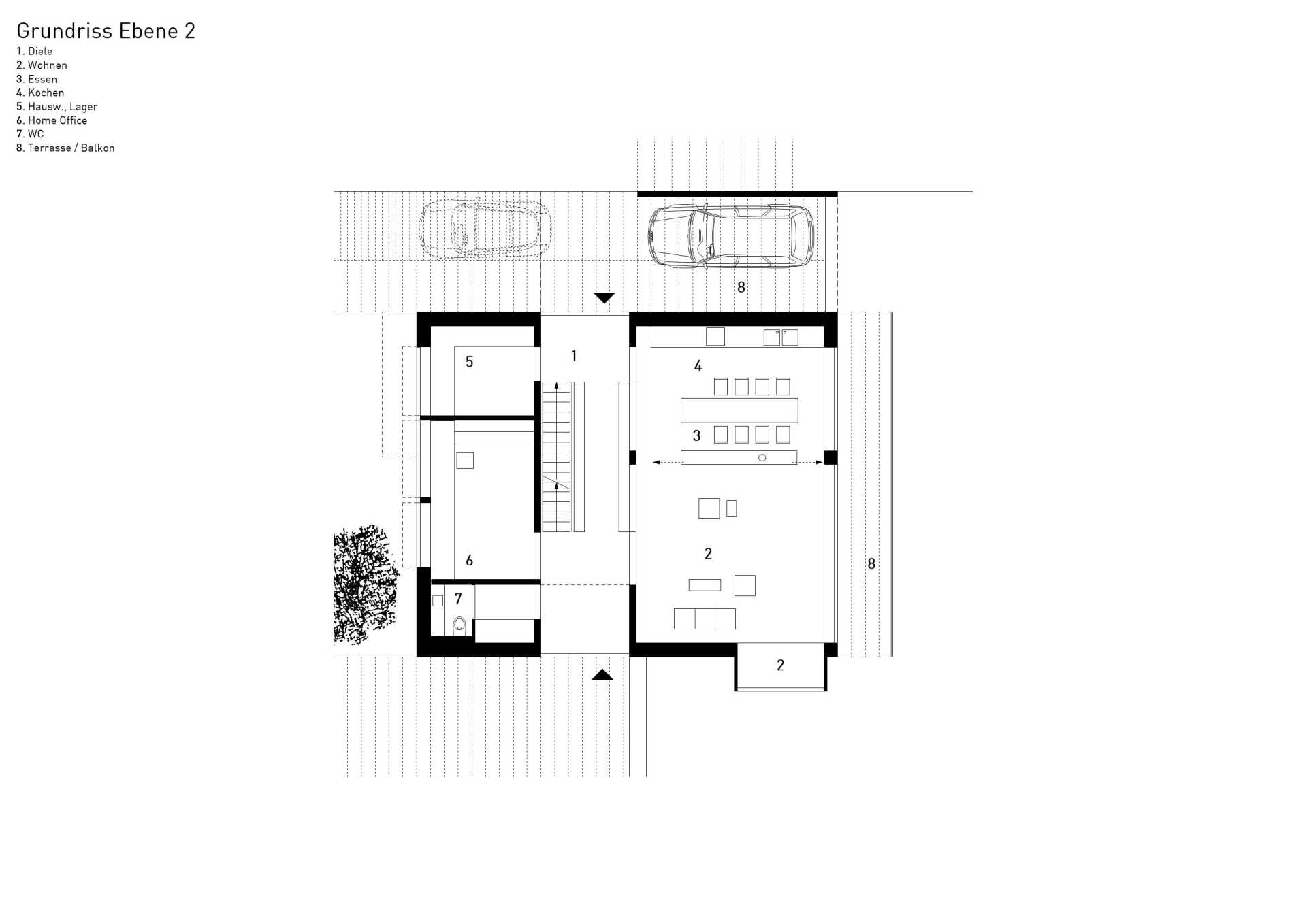
Die besonders günstigen Grundstücksbedingungen mit Erschließungsweg im Norden und Seeblick / Garten in Südrichtung werden direkt in eine dreiteilige Gebäude-Zonierung übersetzt. Räume zum Wohnen und Leben werden konsequent mit großen Öffnungen nach Süden zum See und Garten hin ausgerichtet und bilden einen ablesbaren Baukörper. Vorgelagerte und laubenartig bewachsenen Terrassen und Balkone verlängern das Wohnen bis ins Freie und bilden einen Klimapuffer mit wirkungsvollem natürlichen und technischen Sonnenschutz. Dienende oder mikroklimatisch kühler gewünschte Räume sind in dem nördlich zum öffentlichen Weg hin gelegenen Baukörper angeordnet, der über Lamellen- und Vertikal-Fensterläden ein hohes Maß an Privatheit gewährleisten kann. Zwischen beiden Baukörpern liegt die einladend transparente und über alle Geschoß-Ebenen lichtdurchflutete Diele mit Zugängen von beiden Seiten und der Vertikalerschließung.
Das Haus für alle Lebensphasen - Nutzungsszenarien
Das Gebäudekonzept ermöglicht durch seinen modularen Aufbau und unterschiedliche Ausbaumöglichkeiten eine sehr genaue und laufende Anpassung des Hauses an die Anforderungen seiner Nutzer. Dabei ist die bauliche Umsetzung durch die gewählte Konstruktionsart mit funktionsintegrierten Massivholzelementen technisch sehr einfach und bauphysikalisch unproblematisch.
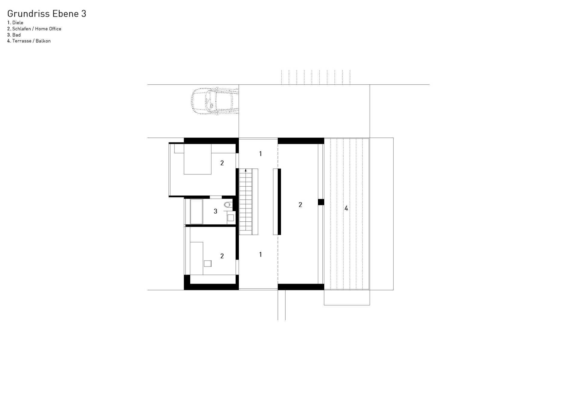
Ausgehend von einer eingeschossigen Variante für ein bis zwei Personen mit ca. 95qm kann die nutzbare Fläche in der darunterliegenden Gartenebene und der darüberliegenden Ebene mit großer Dachterrasse auf bis zu 290qm erweitert werden. Ebenso leicht wie Raum für Kinder oder zusätzliche Nutzungen wie Büro, Praxis, Atelier oder auch Hobby geschaffen werden kann, ist dieser Raum rückzubauen oder beispielsweise als Einliegerwohnung umzunutzen. Mit Blick auf das Wohnen im Alter ist ein Aufzug planerisch vorgesehen und kann bei Bedarf eingebaut werden. Alle anderen Aspekte des barrierefreien Wohnens werden direkt bei der Planung berücksichtigt. Die nebenstehenden Beispiele zeigen eine Auswahl von Grundrissvarianten, die in unterschiedlichen Kombinationen und chronologischen Reihenfolgen realisierbar sind.
Das Haus zum Wohlfühlen - Materialien und Baubiologie
Alle tragenden Konstruktionen (Wände, Böden, Decken) und raumbildenden Ausbauten (Trennwände) werden aus einstofflichen Massivholz-Elementen erstellt, die ohne weitere Oberflächenbehandlung sichtbar bleiben (können). Diese Elemente bestehen aus mehreren Lagen lückenlos kreuzweise geschichteter Hölzer, die leimfrei über Holzdübel miteinander verbunden sind. Sie vermitteln ein warmes Raumklima und fühlen sich tatsächlich wärmer an als Gips oder Mauerwerk. Die sichtbaren Holzflächen zeigen durch ihr natürliches Faserbild ein lebendiges und qualitätvolles Bild. Bauphysikalisch sind Massivholzelemente interessant, weil in einem einzigen Baustoff und Bauelement verschiedenste Funktionen sehr hochwertig integriert sind. Risiken durch komplizierte Materialverbindungen können in dieser funktionsintegrierten Fassade minimiert werden. Massivholz kann zugleich als Wärmedämmung und thermische Speicher-Masse, als Tragwerk und Aussteifung, als Dampfbremse und für Winddichtigkeit sowie als Schutz gegen Schall und hochfrequente elektromagnetische Wellen (Elektrosmog) wie von Mobilfunknetzen eingesetzt werden. Da keinerlei Baufeuchte anfällt, ist nach kürzester Montagezeit das Haus sofort uneingeschränkt bewohnbar. Nach Außen ist ein Wetterschutz sinnvoll, der nach gestalterischen Gesichtspunkten aus beliebigen Materialien bestehen kann. Denkbar sind z.B. Corten-Stahlelemente, Holzleisten, Putz oder diverse Plattenmaterialien.
Baubiologisch gibt es neben der sympathischen Gewissheit, von Naturmaterialien umgeben zu sein, zahlreiche Vorteile von Massivholzkonstruktionen, denen keine Nachteile gegenüberstehen. So ist es medizinisch erwiesen, dass im Gegensatz zu anderen Baumaterialien Allergiker weniger Symptome erleiden, da keine Wohngifte und Schadstoffe wie Lösungsmittel, Biozide, radioaktive Stoffe und Schwermetalle enthalten sind. Auf den Einsatz von Holzschutzmitteln und sonstigen Chemikalien kann komplett verzichtet werden. Massivholz schafft durch seine hohe thermische Trägheit und gute feuchtigkeitsausgleichende Eigenschaften ein angenehmes konstantes Raumklima. Dies wirkt zusammen mit dem homogenen Wandaufbau, der Kondensatbildung verhindert, gegen die Gefahr von Schimmelpilzbildung.
Das Haus mit Verantwortung - Energieeffizienz, Schadstoff-Freiheit, Recycling
Ökologische wie ökonomische Gründe geben gleichermaßen Anlass zu dem hier umgesetzten sparsamen Einsatz von Energieträgern. Dabei wird zweigleisig agiert:
Einerseits wird der Heizenergiebedarf des Hauses durch die gute Wärme-Isolierung, die hohe thermische Speicherkapazität der Massivholzkonstruktion sowie passive Nutzung der Solarenergie mit entsprechender Gebäude-Ausrichtung und –Zonierung auf ca.: 35 kWh/m²a reduziert. Das Gebäude wird somit mindestens als Energieeffizienzhaus des Standards 70 (Basis EnEV2009) eingestuft. Flächenheizungen wie eine Wärmewand (Kapillarmatten) in den primären Aufenthaltsbereichen senken die erforderliche Raumtemperatur bei gleichzeitiger Steigerung der empfundenen Behaglichkeit durch die Abgabe der Wärme als Strahlung.
Andererseits wird die erforderliche Wärme sehr effizient durch eine Wärmepumpe (ca. 5kW) zur Verfügung gestellt. Technisch bedingt ist mit dieser Anlage immer auch eine Kühlung des Gebäudes möglich. Ergänzt wird es durch Solarthermie auf ca. 50qm der Dachfläche zur Trinkwassererwärmung und Heizungsunterstützung. Eine optionale Photovoltaikanlage kann auf weiteren ca. 20qm über das Jahresmittel den Gesamtstrombedarf decken und so das Haus energetisch neutral machen. Eine mechanische Be- und Entlüftung ist nicht erforderlich, sie kann aber zur weiteren Energiereduzierung in Richtung Passivhaus beitragen.
Bauen mit Holz ist ein aktiver Beitrag zur CO2-Reduktion, da Holz aus gebundenem CO2 besteht. Als unbehandeltes Naturprodukt ist es jederzeit als Baumaterial widerverwendbar (100% Recycling ohne Aufbereitung), oder kann CO2-neutral z.B. in Pellet-Heizungen thermisch umgesetzt werden.






